PODCASTS > Arcat Detailed Podcast Episode

117: Rain Screen System | Van Sinderen Plaza

50m 54s | 2024 Dec 06
In this episode, Cherise is joined by Stacie Wong, Principal at GLUCK+ in New York. They discuss the Van Sinderen Plaza Project in Brooklyn.

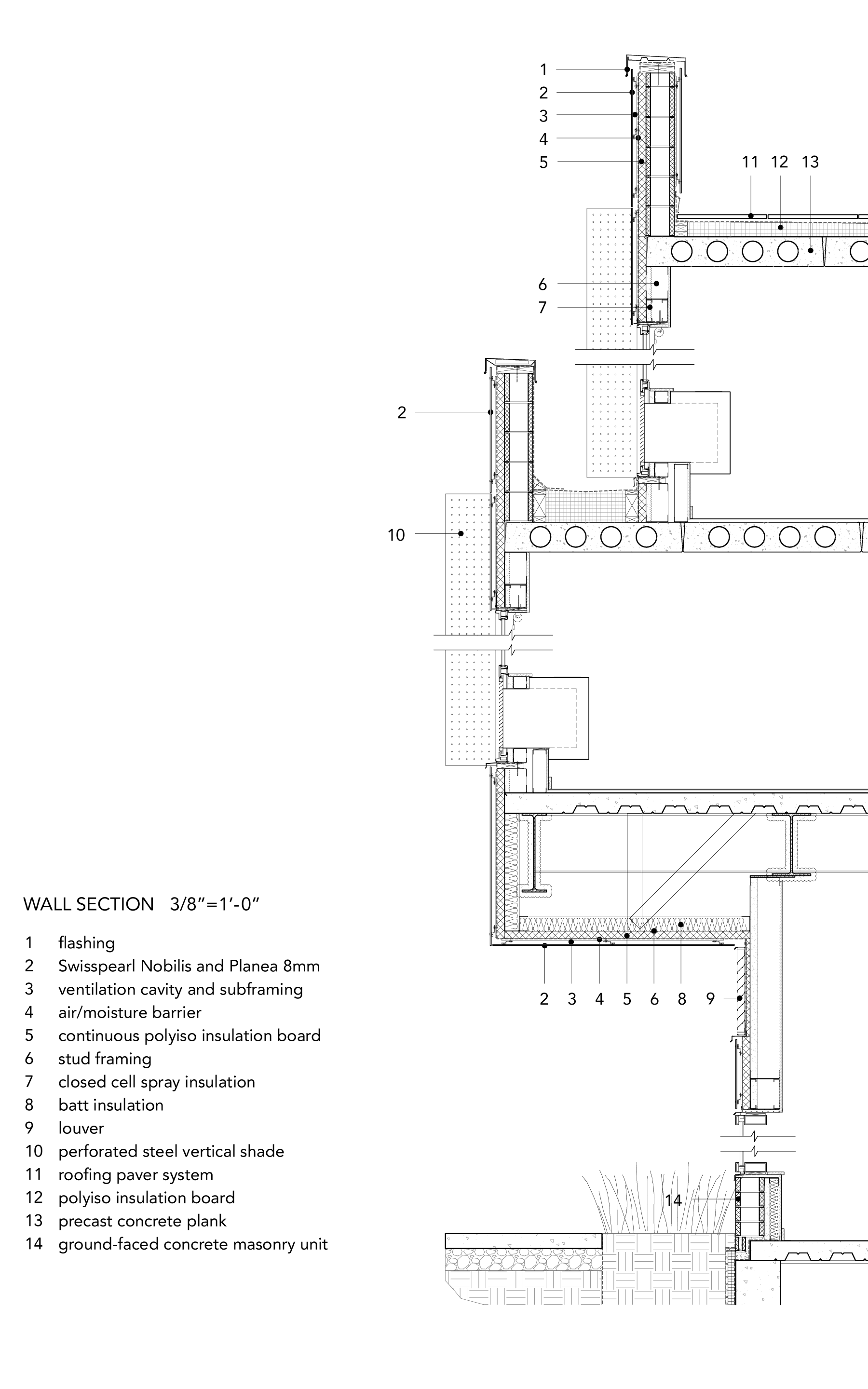
Van Sinderen Plaza is a model of transformation and opportunity in Brooklyn, serving a neighborhood where the need for affordable housing is urgent. Located on the border between East New York and Brownsville, where over half the residents live below the poverty line, the development turns long-abandoned land into a vibrant community asset. The project incorporates green building practices, featuring a ventilated rain-screen system on the facade built from fiber cement panels, using fully recyclable and mostly natural materials.
Click here for the extended length interview on YouTube

Photos:




Stacie Wong, Principal, GLUCK+



Stacie Wong joined the firm in 2001 as an Associate Principal.

Ms. Wong brings considerable design and construction experience in both educational and residential projects.

Notable educational projects include the award-winning Pilkey Lab ground-up science research building for Duke University Marine Laboratory on their coastal campus and the award-winning East Harlem School, both utilizing Architect Led Design Build.

Among other projects, she has extensive experience with school feasibility and programming studies at both K-12 and university levels.

Ms. Wong received her Bachelor of Arts in Architecture from the University of California at Berkeley and a Master of Architecture from Yale University. She was a member of the Yale Building Project and was a research assistant in the Yale Urban Design Workshop participating in an Urban Density and Neighborhood Revitalization study.


Project Name and Location: Van Sinderen Plaza, 670 Van Sinderen Avenue and 180 New Lots Avenue, Brooklyn, New York



Located in the fastest growing section of Brooklyn in which over half the population lives below the poverty line, Van Sinderen Plaza transforms long-vacant derelict land into much-needed affordable housing.

Nine separate lots were consolidated through a public private partnership to develop two "sister" seven-story buildings totaling 193,665 SF alongside an elevated train line and at the border between East New York and Brownsville.

Developed under New York City's Department of Housing Preservation and Development's Extremely Low- and Low-Income Affordability Program, the 100 percent affordable development provides 130 apartments including 1-bedroom, 2- bedroom and 3-bedroom units (with 2- and 3-bedroom units making up more than half the mix) above commercial retail and a community daycare at street level.

In fact, during the city planning approvals process, the site was upzoned to increase the number of affordable units to help ensure low-income families would be able to stay in the area as it changes.
Van Sinderen Plaza runs alongside the elevated tracks of the L train from Manhattan. The design uses a gradation of bold colors down the full length of the façade to amplify the linear movement of the trains coming and going.

Both ends start with dark burgundy to harken the residential brick townhomes in the neighborhood, and gradually transition from dark to light, red to yellow where New Lots Avenue crosses Van Sinderen Ave, interrupting the linear experience.

At this intersection, the buildings set back from the street, creating a new gateway plaza to the neighborhood and public outdoor space for the community, resulting in a pedestrian-friendly scale sympathetic with surrounding low-lying neighboring homes.
The long linear site, fronting the elevated train tracks on a 26-foot narrow street, had a very narrow 5-foot sidewalk. The design sets back the ground floor building massing to provide a generous 15-foot-wide sidewalk for a better and safer pedestrian experience and a stronger presence for retail.

Above the ground floor, the building massing cantilevers back toward the property line to gain back a larger building footprint for apartment levels. Architecturally, this sculptural move provided the added benefit of breaking down the scale of the building and along with staggering the vertical placement of the windows, provides visual interest to the repetitive nature of the housing program. As one moves down the street, vertical fins at the windows punctuate its length, modulating the outside and inside and registering the rhythm of the colors changing.
The colorful exterior cladding system is a ventilated rainscreen composed of fiber cement panels and a girt support system. A lightweight insulation board serves as the sheathing, continuous insulation, and air and moisture barrier, all-in-one, reducing labor costs and installation time. Its high compressive strength stabilizes the substructure, allowing attachment with simple channels and long screws to create an inexpensive thermal-bridge-free system. Panels are manufactured using 95% natural raw materials and are fully recyclable. Open joint rainscreens require less sealant, a high embodied energy material.

Though we did not build the project, our Architect-Led Design Build mindset allowed us to strategize and streamline costs. We deliberately selected 10-foot-high raw panels to accommodate the varying floor-to-floor heights of the building, ranging between 9' 4" and 10'. Since the panels came in 4-foot widths, we designed the colorful façade pattern to include 1'-4" and 2'-8" wide sections only. In this way, the panel material was used efficiently with minimal waste.
The LEED certified development also received Enterprise Green Communities certification, by the only US national green building program created with and for the affordable housing sector. Amenities in each building include an indoor resident recreation room with adjacent on-site shared laundry room, outdoor resident recreation terrace, and bicycle storage.


Project Team List:




Unique Products:




Participants:

Cherise Lakeside, FCSI, CDT  image
Cherise Lakeside, FCSI, CDT
Senior Spec Writer | RDH Building Science
Stacie Wong image
Stacie Wong
Principal | GLUCK+
117: Rain Screen System | Van Sinderen Plaza